takeofficeなら掲載物件の仲介手数料は無料です

四谷駅前ビル

住所 東京都新宿区四谷1-4
交通 JR中央線四ツ谷」 徒歩1分
東京メトロ有楽町線麹町」 徒歩10分
JR総武本線市ヶ谷」 徒歩13分
竣工 1968年09月 構造 RC
規模 地上7階, 地下2階 耐震基準 新耐震基準
床構造 フリーアクセス 50mm 空調設備 個別空調
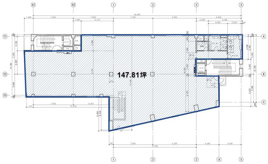
天井高 2350mm 基準階面積 148.73坪(491.67m2)
コンセント容量 - 施工会社

最新の募集状況や類似物件については、
こちらにお問い合わせください。

四谷駅前ビル 外観

外観

  • 四谷駅前ビル エントランス写真

    エントランス

  • 5F

    5F

内見やお見積りなどの各種お問い合わせ

全物件
仲介手数料無料
仲介から
入居工事まで
ワンストップで対応
経験豊富なスタッフが
スピード感をもって
対応

周辺での似た条件の物件

非公開物件 多数あり!

お問い合わせフォーム