takeofficeなら掲載物件の仲介手数料は無料です

四谷三菱ビルディング

住所 東京都新宿区四谷3-2-1
交通 東京メトロ丸ノ内線四谷三丁目」 徒歩3分
都営新宿線曙橋」 徒歩8分
JR中央線四ツ谷」 徒歩8分
竣工 1973年11月 構造 SRC
規模 地上9階, 地下2階 耐震基準 新耐震基準
床構造 フリーアクセス 50mm 空調設備 セントラル+個別
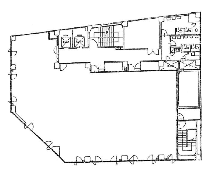
天井高 2550mm 基準階面積 110.37坪(364.86m2)
コンセント容量 - 施工会社

最新の募集状況や類似物件については、
こちらにお問い合わせください。

四谷三菱ビルディング 外観

外観

内見やお見積りなどの各種お問い合わせ

全物件
仲介手数料無料
仲介から
入居工事まで
ワンストップで対応
経験豊富なスタッフが
スピード感をもって
対応

周辺での似た条件の物件

非公開物件 多数あり!

お問い合わせフォーム