takeofficeなら掲載物件の仲介手数料は無料です

ツナシマ第2ビル

住所 東京都文京区湯島3-20-12
交通 東京メトロ千代田線湯島」 徒歩3分
JR中央線御茶ノ水」 徒歩7分
竣工 1972年01月 構造 SRC
規模 地上7階, 地下2階 耐震基準 旧耐震基準
床構造 フリーアクセス 空調設備 個別空調
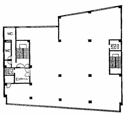
天井高 - 基準階面積 120.62坪(398.74m2)
コンセント容量 - 施工会社

最新の募集状況や類似物件については、
こちらにお問い合わせください。

ツナシマ第2ビル 外観

外観

  • NOW PRINTING

    エントランス

  • 4F

    4F

  • 1F

    1F

内見やお見積りなどの各種お問い合わせ

全物件
仲介手数料無料
仲介から
入居工事まで
ワンストップで対応
経験豊富なスタッフが
スピード感をもって
対応

周辺での似た条件の物件

非公開物件 多数あり!

お問い合わせフォーム