takeofficeなら掲載物件の仲介手数料は無料です

東京家具会館

住所 東京都文京区湯島3-24-13
交通 東京メトロ千代田線湯島」 徒歩1分
東京メトロ銀座線上野広小路」 徒歩6分
東京メトロ銀座線末広町」 徒歩6分
竣工 1970年01月 構造 SRC
規模 地上8階, 地下1階 耐震基準 旧耐震基準
床構造 フリーアクセス 50mm 空調設備 個別空調
天井高 2900mm 基準階面積 101.55坪(335.7m2)
コンセント容量 60VA/m2 施工会社

最新の募集状況や類似物件については、
こちらにお問い合わせください。

東京家具会館 外観

外観

  • 東京家具会館 エントランス写真

    エントランス

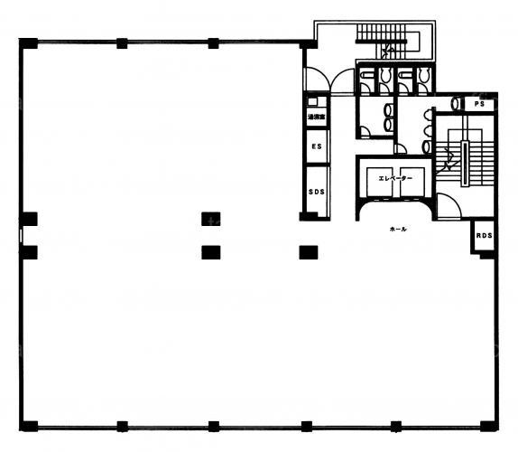
  • 基準階(2~7F)

    基準階(2~7F)

内見やお見積りなどの各種お問い合わせ

全物件
仲介手数料無料
仲介から
入居工事まで
ワンストップで対応
経験豊富なスタッフが
スピード感をもって
対応

周辺での似た条件の物件

非公開物件 多数あり!

お問い合わせフォーム