takeofficeなら掲載物件の仲介手数料は無料です

坂詰ビル

住所 東京都文京区本郷1-11-12
交通 JR総武本線水道橋」 徒歩4分
東京メトロ丸ノ内線本郷三丁目」 徒歩5分
東京メトロ丸ノ内線後楽園」 徒歩8分
竣工 1988年10月 構造 SRC
規模 地上8階, 地下1階 耐震基準 新耐震基準
床構造 - 空調設備 個別空調
天井高 - 基準階面積 --
コンセント容量 - 施工会社

最新の募集状況や類似物件については、
こちらにお問い合わせください。

坂詰ビル 外観

外観

  • 坂詰ビル エントランス写真

    エントランス

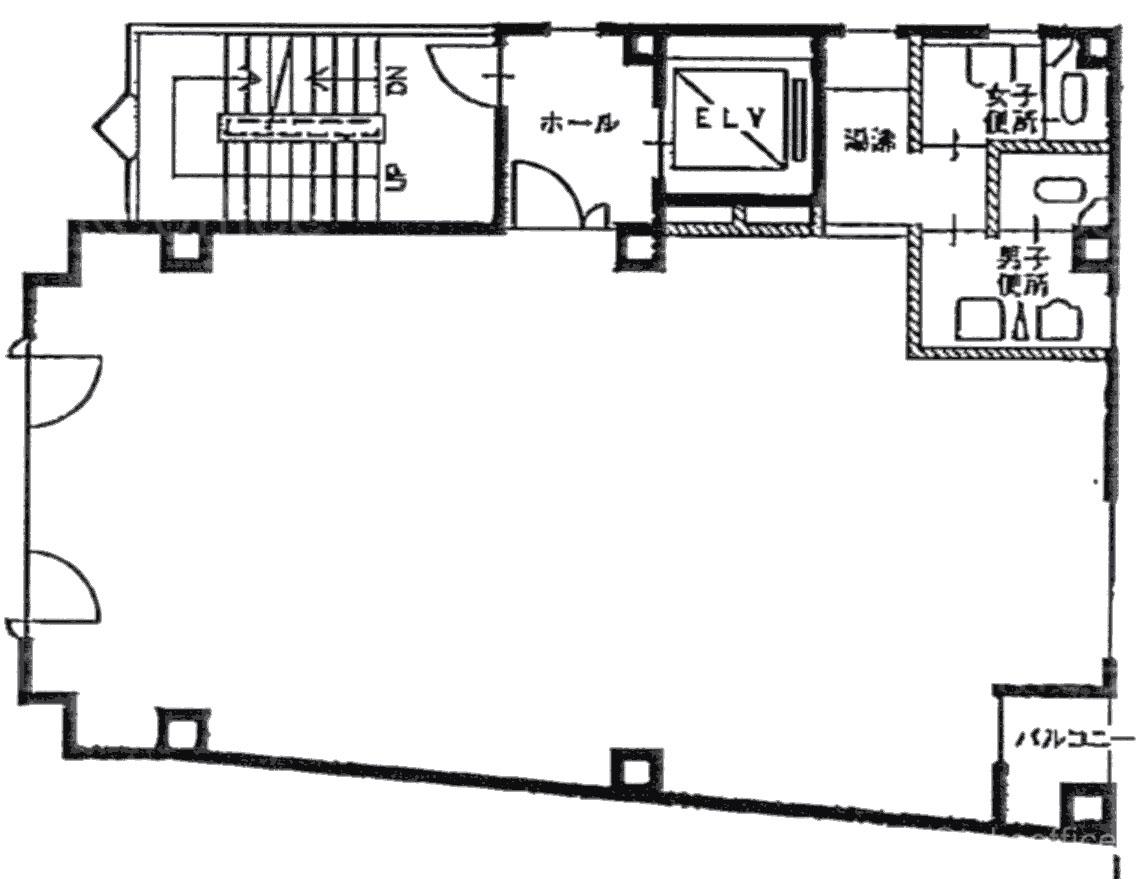
  • 基準階

    基準階

内見やお見積りなどの各種お問い合わせ

全物件
仲介手数料無料
仲介から
入居工事まで
ワンストップで対応
経験豊富なスタッフが
スピード感をもって
対応

周辺での似た条件の物件

非公開物件 多数あり!

お問い合わせフォーム