takeofficeなら掲載物件の仲介手数料は無料です

冨士ビル

住所 東京都文京区本郷2-10-9
交通 JR中央線御茶ノ水」 徒歩6分
東京メトロ千代田線新御茶ノ水」 徒歩7分
東京メトロ丸ノ内線本郷三丁目」 徒歩6分
竣工 1971年 月 構造 SRC
規模 地上9階 耐震基準 新耐震基準
床構造 フリーアクセス 50mm 空調設備 個別空調
天井高 2350mm 基準階面積 118.93坪(393.16m2)
コンセント容量 - 施工会社

最新の募集状況や類似物件については、
こちらにお問い合わせください。

冨士ビル 外観

外観

  • 冨士ビル エントランス写真

    エントランス

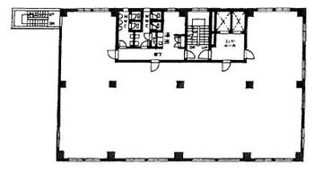
  • 基準階

    基準階

  • 3F

    3F

内見やお見積りなどの各種お問い合わせ

全物件
仲介手数料無料
仲介から
入居工事まで
ワンストップで対応
経験豊富なスタッフが
スピード感をもって
対応

周辺での似た条件の物件

非公開物件 多数あり!

お問い合わせフォーム