takeofficeなら掲載物件の仲介手数料は無料です

本郷ビル

住所 東京都文京区本郷7-2-2
交通 都営大江戸線本郷三丁目」 徒歩1分
JR中央線御茶ノ水」 徒歩10分
竣工 1991年01月 構造 RC
規模 地上11階, 地下1階 耐震基準 新耐震基準
床構造 - 空調設備 個別空調
天井高 - 基準階面積 22.15坪(73.22m2)
コンセント容量 - 施工会社

最新の募集状況や類似物件については、
こちらにお問い合わせください。

本郷ビル 外観

外観

  • 本郷ビル エントランス写真

    エントランス

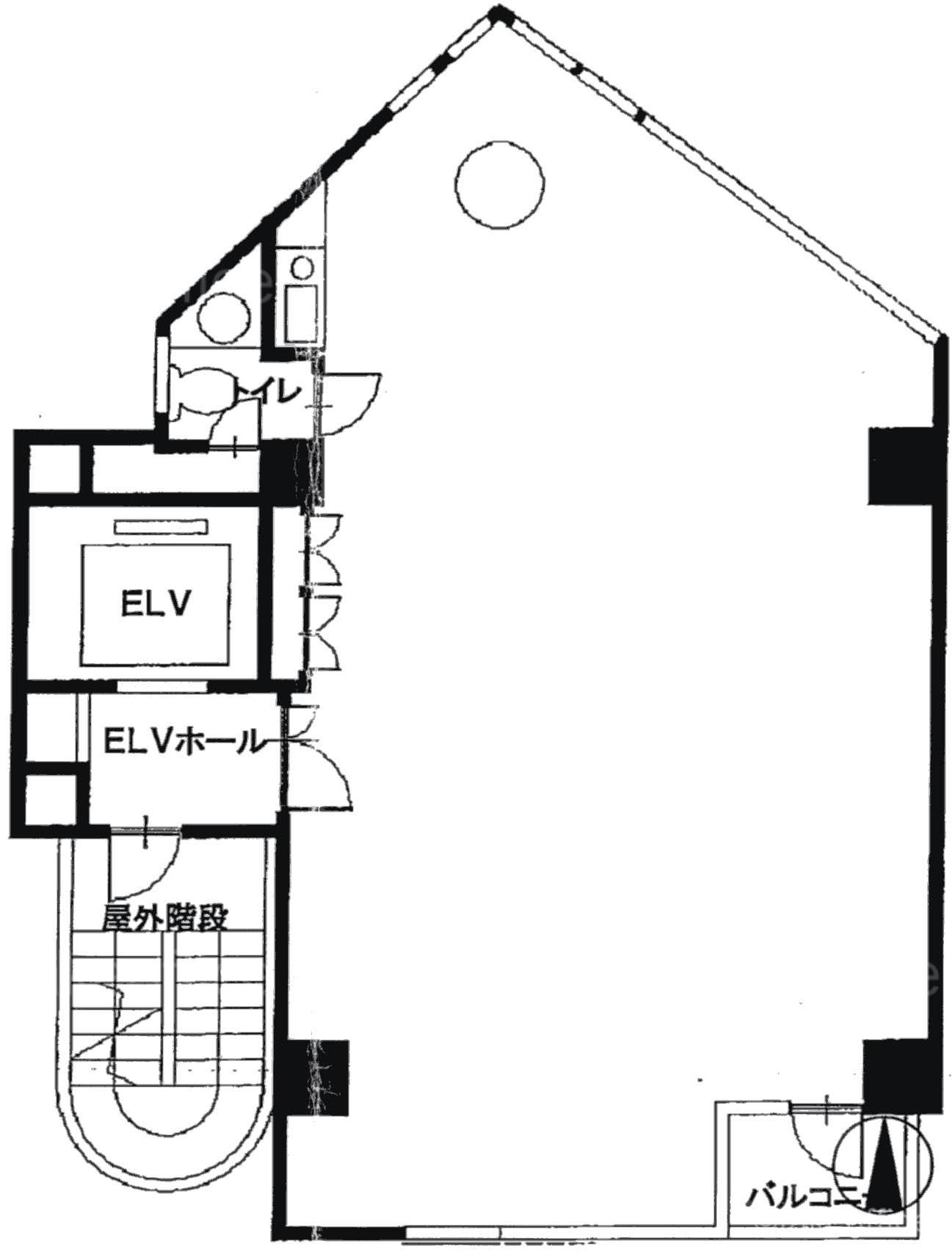
  • 基準階

    基準階

内見やお見積りなどの各種お問い合わせ

全物件
仲介手数料無料
仲介から
入居工事まで
ワンストップで対応
経験豊富なスタッフが
スピード感をもって
対応

周辺での似た条件の物件

非公開物件 多数あり!

お問い合わせフォーム