takeofficeなら掲載物件の仲介手数料は無料です

サンウエスト山手ビル

住所 東京都品川区西五反田3-11-6
交通 目黒線不動前」 徒歩2分
JR山手線五反田」 徒歩11分
東京メトロ南北線目黒」 徒歩11分
竣工 1993年02月 構造 SRC
規模 地上8階, 地下1階 耐震基準 新耐震基準
床構造 フリーアクセス 空調設備 個別空調
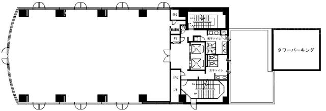
天井高 2600mm 基準階面積 96.96坪(320.53m2)
コンセント容量 - 施工会社

最新の募集状況や類似物件については、
こちらにお問い合わせください。

サンウエスト山手ビル 外観

外観

建物パンフレット

建物パンフレットは作成時点のものであり、また計画段階のものも含まれる為、実際とは異なる場合がございます。

内見やお見積りなどの各種お問い合わせ

全物件
仲介手数料無料
仲介から
入居工事まで
ワンストップで対応
経験豊富なスタッフが
スピード感をもって
対応

周辺での似た条件の物件

非公開物件 多数あり!

お問い合わせフォーム