takeofficeなら掲載物件の仲介手数料は無料です

三友ビル

住所 東京都文京区本郷3-42-1
交通 東京メトロ丸ノ内線本郷三丁目」 徒歩6分
東京メトロ千代田線湯島」 徒歩7分
竣工 1957年04月 構造 RC
規模 地上4階 耐震基準 新耐震基準
床構造 - 空調設備 個別空調
天井高 2700mm 基準階面積 --
コンセント容量 - 施工会社

最新の募集状況や類似物件については、
こちらにお問い合わせください。

三友ビル 外観

外観

  • 三友ビル エントランス写真

    エントランス

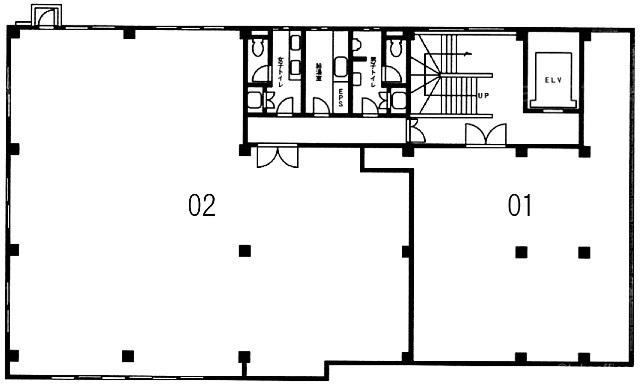
  • 3F

    3F

内見やお見積りなどの各種お問い合わせ

全物件
仲介手数料無料
仲介から
入居工事まで
ワンストップで対応
経験豊富なスタッフが
スピード感をもって
対応

周辺での似た条件の物件

非公開物件 多数あり!

お問い合わせフォーム