takeofficeなら掲載物件の仲介手数料は無料です

飯田橋尚学ビル(新館)

住所 東京都文京区後楽2-15-3
交通 都営大江戸線飯田橋」 徒歩4分
JR総武本線飯田橋」 徒歩4分
竣工 1982年01月 構造 RC
規模 地上3階 耐震基準 新耐震基準
床構造 フリーアクセス 100mm 空調設備 -
天井高 2550mm 基準階面積 --
コンセント容量 40VA/m2 施工会社

最新の募集状況や類似物件については、
こちらにお問い合わせください。

飯田橋尚学ビル(新館) 外観

外観

  • 飯田橋尚学ビル(新館) エントランス写真

    エントランス

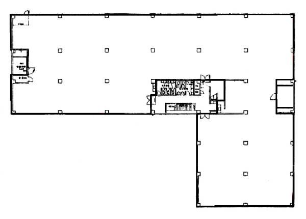
  • 基準階

    基準階

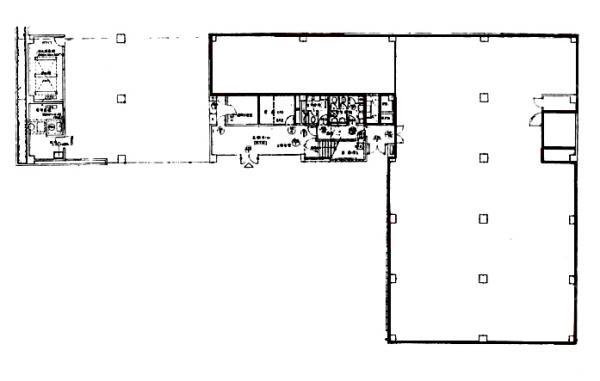
  • 1F

    1F

内見やお見積りなどの各種お問い合わせ

全物件
仲介手数料無料
仲介から
入居工事まで
ワンストップで対応
経験豊富なスタッフが
スピード感をもって
対応

周辺での似た条件の物件

非公開物件 多数あり!

お問い合わせフォーム