takeofficeなら掲載物件の仲介手数料は無料です

北村ビル

住所 東京都文京区大塚3-42-12
交通 東京メトロ丸ノ内線茗荷谷」 徒歩10分
都営三田線千石」 徒歩13分
東京メトロ丸ノ内線新大塚」 徒歩13分
竣工 1972年 月 構造 RC
規模 地上5階, 地下0階 耐震基準 旧耐震基準
床構造 - 空調設備 個別空調
天井高 - 基準階面積 --
コンセント容量 - 施工会社

最新の募集状況や類似物件については、
こちらにお問い合わせください。

北村ビル 外観

外観

  • 北村ビル エントランス写真

    エントランス

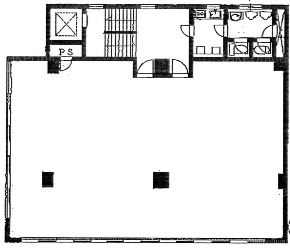
  • 3F4F

    3F4F

内見やお見積りなどの各種お問い合わせ

全物件
仲介手数料無料
仲介から
入居工事まで
ワンストップで対応
経験豊富なスタッフが
スピード感をもって
対応

周辺での似た条件の物件

非公開物件 多数あり!

お問い合わせフォーム