takeofficeなら掲載物件の仲介手数料は無料です

井雅ビル

住所 東京都品川区上大崎3-14-12
交通 目黒線目黒」 徒歩7分
JR山手線目黒」 徒歩7分
JR山手線五反田」 徒歩10分
竣工 1965年 月 構造 RC
規模 地上6階 耐震基準 旧耐震基準
床構造 フリーアクセス 空調設備 個別空調
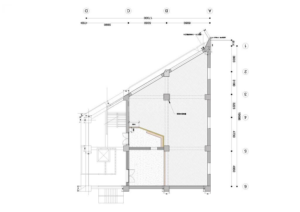
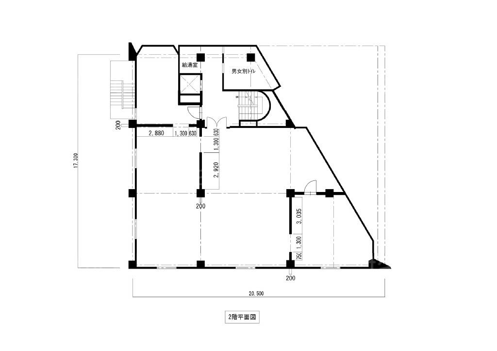
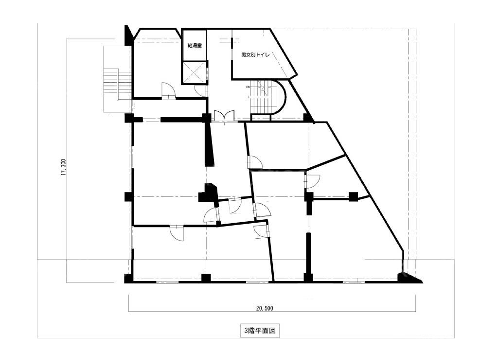
天井高 - 基準階面積 72.22坪(238.74m2)
コンセント容量 - 施工会社

最新の募集状況や類似物件については、
こちらにお問い合わせください。

井雅ビル 外観

外観

内見やお見積りなどの各種お問い合わせ

全物件
仲介手数料無料
仲介から
入居工事まで
ワンストップで対応
経験豊富なスタッフが
スピード感をもって
対応

周辺での似た条件の物件

非公開物件 多数あり!

お問い合わせフォーム