takeofficeなら掲載物件の仲介手数料は無料です

不二越ビルディング

住所 東京都品川区東五反田5-23-7
交通 JR山手線五反田」 徒歩2分
都営浅草線五反田」 徒歩2分
池上線五反田」 徒歩2分
竣工 1967年11月 構造 SRC
規模 地上8階, 地下2階 耐震基準 耐震診断書有
床構造 フリーアクセス 30mm 空調設備 個別空調
天井高 2480mm 基準階面積 97.01坪(320.69m2)
コンセント容量 - 施工会社

最新の募集状況や類似物件については、
こちらにお問い合わせください。

不二越ビルディング 外観

外観

  • NOW PRINTING

    エントランス

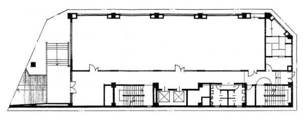
  • 基準階(4~5F)

    基準階(4~5F)

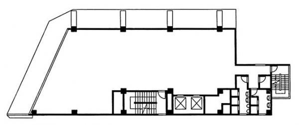
  • 1F

    1F

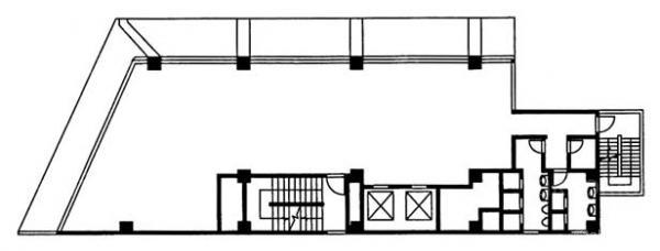
  • 2F

    2F

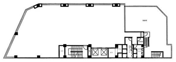
  • 3F

    3F

  • 6F

    6F

  • 7F

    7F

建物パンフレット

建物パンフレットは作成時点のものであり、また計画段階のものも含まれる為、実際とは異なる場合がございます。

内見やお見積りなどの各種お問い合わせ

全物件
仲介手数料無料
仲介から
入居工事まで
ワンストップで対応
経験豊富なスタッフが
スピード感をもって
対応

周辺での似た条件の物件

非公開物件 多数あり!

お問い合わせフォーム