takeofficeなら掲載物件の仲介手数料は無料です

ニッセイ五反田駅前ビル

住所 東京都品川区東五反田5-26-5
交通 JR山手線五反田」 徒歩1分
都営浅草線五反田」 徒歩1分
竣工 1987年 月 構造 SRC
規模 地上7階, 地下2階 耐震基準 新耐震基準
床構造 フリーアクセス 50mm 空調設備 フロア別空調
天井高 2400mm 基準階面積 81坪(267.77m2)
コンセント容量 - 施工会社

最新の募集状況や類似物件については、
こちらにお問い合わせください。

ニッセイ五反田駅前ビル 外観

外観

  • ニッセイ五反田駅前ビル エントランス写真

    エントランス

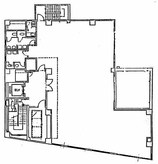
  • 基準階(5~6F)

    基準階(5~6F)

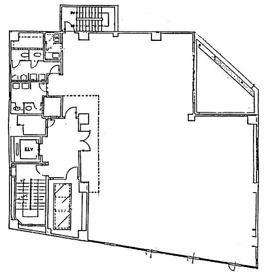
  • 7F

    7F

内見やお見積りなどの各種お問い合わせ

全物件
仲介手数料無料
仲介から
入居工事まで
ワンストップで対応
経験豊富なスタッフが
スピード感をもって
対応

周辺での似た条件の物件

非公開物件 多数あり!

お問い合わせフォーム