takeofficeなら掲載物件の仲介手数料は無料です

第3岩田ビル

住所 東京都品川区西五反田2-28-2
交通 JR山手線五反田」 徒歩3分
都営浅草線五反田」 徒歩3分
竣工 1970年12月 構造 SRC
規模 地上9階, 地下1階 耐震基準 旧耐震基準
床構造 - 空調設備 フロア別空調
天井高 2450mm 基準階面積 78.02坪(257.92m2)
コンセント容量 - 施工会社

最新の募集状況や類似物件については、
こちらにお問い合わせください。

第3岩田ビル 外観

外観

  • NOW PRINTING

    エントランス

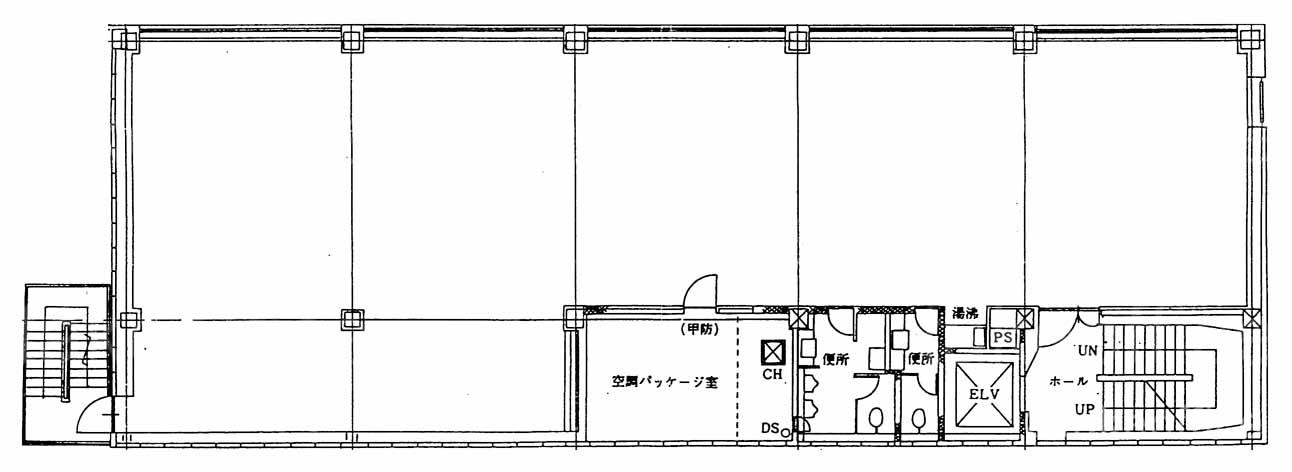
  • 基準階(2~9F)

    基準階(2~9F)

内見やお見積りなどの各種お問い合わせ

全物件
仲介手数料無料
仲介から
入居工事まで
ワンストップで対応
経験豊富なスタッフが
スピード感をもって
対応

周辺での似た条件の物件

非公開物件 多数あり!

お問い合わせフォーム