takeofficeなら掲載物件の仲介手数料は無料です

シーバード五反田

住所 東京都品川区西五反田2-31-9
交通 池上線大崎広小路」 徒歩5分
JR山手線五反田」 徒歩6分
目黒線不動前」 徒歩8分
竣工 1973年07月 構造 RC
規模 地上5階, 地下1階 耐震基準 旧耐震基準
床構造 - 空調設備 個別空調
天井高 - 基準階面積 51.77坪(171.14m2)
コンセント容量 - 施工会社

最新の募集状況や類似物件については、
こちらにお問い合わせください。

シーバード五反田 外観

外観

  • シーバード五反田 エントランス写真

    エントランス

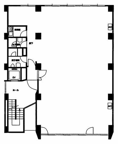
  • 基準階

    基準階

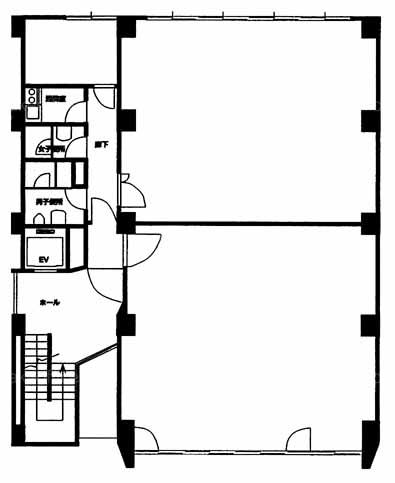
  • 1F

    1F

  • 2F

    2F

  • 3F

    3F

  • 5F

    5F

  • 4F

    4F

内見やお見積りなどの各種お問い合わせ

全物件
仲介手数料無料
仲介から
入居工事まで
ワンストップで対応
経験豊富なスタッフが
スピード感をもって
対応

周辺での似た条件の物件

非公開物件 多数あり!

お問い合わせフォーム