takeofficeなら掲載物件の仲介手数料は無料です

神興ビル

住所 東京都品川区東品川3-18-1
交通 りんかい線品川シーサイド」 徒歩4分
東京モノレール天王洲アイル」 徒歩9分
竣工 1980年05月 構造 RC
規模 地上5階 耐震基準 旧耐震基準
床構造 - 空調設備 個別空調
天井高 2330mm 基準階面積 87.3坪(288.6m2)
コンセント容量 - 施工会社

最新の募集状況や類似物件については、
こちらにお問い合わせください。

NOW PRINTING

外観

  • NOW PRINTING

    エントランス

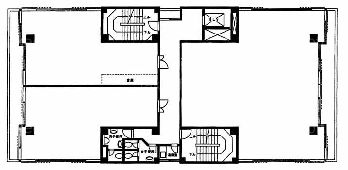
  • 5F

    5F

  • 4F

    4F

内見やお見積りなどの各種お問い合わせ

全物件
仲介手数料無料
仲介から
入居工事まで
ワンストップで対応
経験豊富なスタッフが
スピード感をもって
対応

周辺での似た条件の物件

非公開物件 多数あり!

お問い合わせフォーム