takeofficeなら掲載物件の仲介手数料は無料です

戸浪大森ビル

住所 東京都品川区南大井6-16-4
交通 JR京浜東北線大森」 徒歩5分
京浜急行大森海岸」 徒歩8分
京浜急行立会川」 徒歩14分
竣工 1988年10月 構造 SRC
規模 地上9階, 地下1階 耐震基準 新耐震基準
床構造 - 空調設備 個別空調
天井高 2500mm 基準階面積 83.21坪(275.07m2)
コンセント容量 - 施工会社

最新の募集状況や類似物件については、
こちらにお問い合わせください。

戸浪大森ビル 外観

外観

  • 戸浪大森ビル エントランス写真

    エントランス

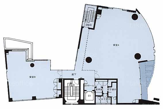
  • 基準階(3~5F)

    基準階(3~5F)

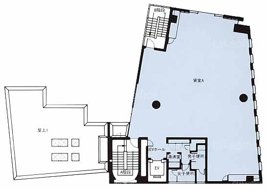
  • 1F

    1F

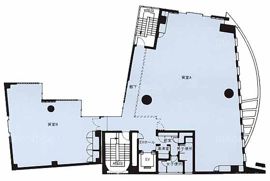
  • 2F

    2F

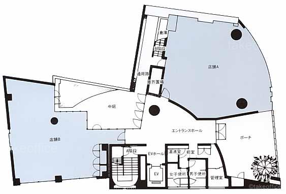
  • 6~9F

    6~9F

内見やお見積りなどの各種お問い合わせ

全物件
仲介手数料無料
仲介から
入居工事まで
ワンストップで対応
経験豊富なスタッフが
スピード感をもって
対応

周辺での似た条件の物件

非公開物件 多数あり!

お問い合わせフォーム