takeofficeなら掲載物件の仲介手数料は無料です

興産大森ビル

住所 東京都品川区南大井6-24-9
交通 JR京浜東北線大森」 徒歩2分
京浜急行大森海岸」 徒歩7分
竣工 1983年06月 構造 RC
規模 地上5階, 地下1階 耐震基準 新耐震基準
床構造 フリーアクセス 空調設備 個別空調
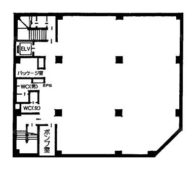
天井高 - 基準階面積 86坪(284.3m2)
コンセント容量 - 施工会社

最新の募集状況や類似物件については、
こちらにお問い合わせください。

興産大森ビル 外観

外観

  • 興産大森ビル エントランス写真

    エントランス

  • 2F

    2F

  • 1F

    1F

  • 3F

    3F

  • 4F

    4F

  • 5F

    5F

  • B1F

    B1F

内見やお見積りなどの各種お問い合わせ

全物件
仲介手数料無料
仲介から
入居工事まで
ワンストップで対応
経験豊富なスタッフが
スピード感をもって
対応

周辺での似た条件の物件

非公開物件 多数あり!

お問い合わせフォーム